+351 281 101 254 | +351 918 774 036

Bungavília Plaza nº1
Quinta do Lago
8135-024
Procurar Imóvel
Partilhar  »  
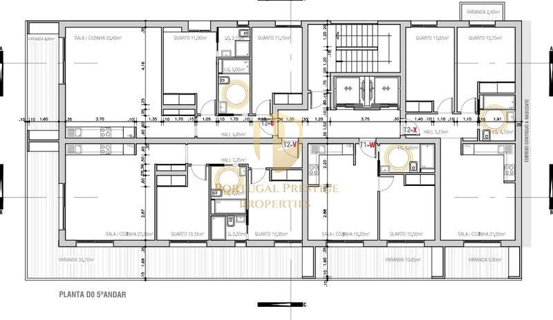
T2 em Projeto no Quinto andar - Edifício Sudoeste
1 / 5
2 / 5
3 / 5
4 / 5
5 / 5
Novidade
Ver fotografias de maior dimensão
  • Tipo de imóvelApartamento T2
  • Venda
    € 550.000
    ≈ ₿ 9,725
  • Área70 m² | 83 m²
  • EstadoEm Projecto
  • DistritoFaro
  • ConcelhoVila Real de Santo António
  • Freguesia
    Monte Gordo
  • REFPR-CS-APT-94244_U
2
2
70 m²
83 m²
-1
-
A
 

Descrição

T2 Novo a 50 Metros da Praia de Monte Gordo
Poente/ Norte
Descubra este T2 em Projeto, situado no Quarto Andar, a apenas 50 metros da areia dourada da icónica Praia de Monte Gordo. Uma excelente oportunidade para viver junto ao mar, passar férias ou investir num dos destinos mais procurados do Algarve!

Composição do imóvel:

Cozinha equipada - moderna e funcional

Quarto principal com roupeiro embutido

Casa de banho completa

Hall de entrada

Imóvel moderno, com bons acabamentos e layout prático
Ideal para rendimento turístico ou uso próprio
Localização imbatível - perto da praia, restaurantes, cafés e comércio local

Apresentamos o empreendimento Mar, situado em Monte Gordo, uma das localidades mais emblemáticas do litoral algarvio, a apenas 50 metros da praia. Este moderno apartamento oferece o equilíbrio perfeito entre conforto, funcionalidade e qualidade de vida.

Início da Construção está previsto para antes do verão de 2026, estimandose um prazo de construção de aproximadamente 24 meses
Condições de pagamento:

Reserva €5.000, CPCV 25%, mais 25% com a estrutura e paredes acabadas e 50% na escritura.

Características do imóvel:
Caixilharia em alumínio com corte térmico, assegurando isolamento térmico e acústico.

Estores elétricos.

Pré-instalação de ar condicionado.

Instalações sanitárias modernas, com sanitários, lavatórios e bidês suspensos.

Painel solar para aquecimento de águas quentes sanitárias.

Cozinha totalmente equipada: placa vitrocerâmica, forno, exaustor, frigorífico, máquina de lavar loiça e máquina de lavar roupa.

Piso cerâmico em todas as divisões.

Este imóvel insere-se num empreendimento novo, com acabamentos de alta qualidade, pensado para proporcionar uma vivência tranquila, moderna e junto ao mar.

Monte Gordo - Praia, Comodidade e Qualidade de Vida
Monte Gordo é um dos destinos de eleição no Algarve oriental, conhecido pela sua praia de areia fina e extensa, águas quentes e calmas, ideais para famílias e momentos de lazer. Ao longo da marginal, encontra-se uma vasta oferta de restaurantes típicos, cafés, geladarias, supermercados, bem como farmácias, bancos, e outros serviços essenciais. A zona é plana e de fácil acesso, sendo perfeita para passeios a pé ou de bicicleta.

Durante todo o ano, Monte Gordo oferece eventos culturais, feiras, e uma atmosfera acolhedora que combina a tranquilidade com a vivacidade típica das zonas balneares.

Casas do Sotavento - A Imobiliária que Constrói Confiança.
Este imóvel é promovido pela Casas do Sotavento, uma imobiliária reconhecida pela sua experiência, transparência e compromisso com o cliente. Com uma vasta carteira de imóveis no Algarve e no Alentejo, a Casas do Sotavento garante um acompanhamento profissional e personalizado em todas as fases do processo de compra, venda ou arrendamento. A sua missão é proporcionar aos clientes negócios seguros e experiências positivas, com total dedicação e conhecimento do mercado imobiliário da região.

Características

  • Pré-instalação de ar condicionado
  • Isolamento térmico e acústico
  • Acabamentos de alta qualidade
  • Cozinha totalmente equipada
  • Casa de banho completa
  • Máquina de lavar roupa
  • Instalações sanitárias
  • Excelente oportunidade
  • Cozinha equipada
  • 50 metros da praia

Fotografias

  • -825161885_ID53b7bf01-0000-0500-0000-0000186fcf99.jpg
  • -825161885_ID53b7bf01-0000-0500-0000-0000186fcf98.jpg
  • -825161885_ID53b7bf01-0000-0500-0000-0000186fcf97.jpg
  • -825161885_ID53b7bf01-0000-0500-0000-0000186fcf96.jpg
  • -825161885_ID53b7bf01-0000-0500-0000-00001866a25e.jpg

Localização

Monte Gordo, Vila Real de Santo António, Faro (Algarve)