+351 281 101 254 | +351 918 774 036

Bungavília Plaza nº1
Quinta do Lago
8135-024
Search Property:
Share  »  
Project approved for construction of 146-room hotel in Faro, inserted on land with 14.69 hectares
1 / 21
2 / 21
3 / 21
4 / 21
5 / 21
6 / 21
7 / 21
8 / 21
9 / 21
10 / 21
11 / 21
12 / 21
13 / 21
14 / 21
15 / 21
16 / 21
17 / 21
18 / 21
19 / 21
20 / 21
21 / 21
Click to see bigger photos
  • Video Watch
  • Property typeHotel
  • Sale
    € 3.500.000
    ≈ ₿ 58,479
  • Area7800 m² | 146915 m²
  • StatusIn Project
  • CountyFaro
  • TownFaro
  • Parish
    Santa Bárbara de Nexe
  • LocationGorjões
  • REFPR-CS-HOT-85155
-
-
7800 m²
146915 m²
-1
-
I
 

Description

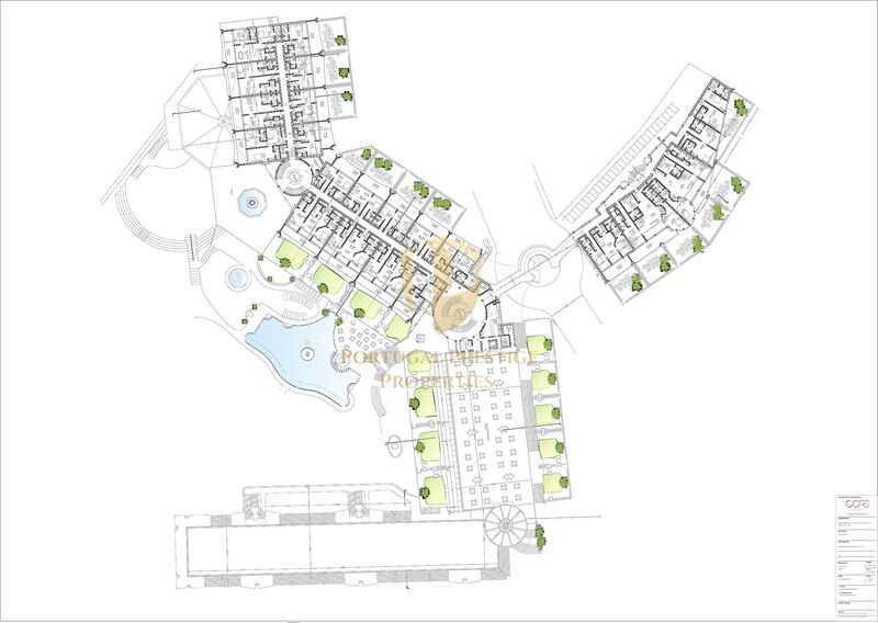
Project approved by the municipality of Faro, for the construction of a hotel with 146 rooms, an aparthotel with 83 apartments and a 9-hole golf course, just 10 minutes from the historic center of Faro, the beach and the international airport, in the district capital.

The lot size is around 146,915m², including the implementation of a Hotel with 8,327m².
The Apart-Hotel will have 83 Apartments and 146 Hotel Rooms.

The value of the fee for issuing the building permit is around €170,000. As for the concessions to be made to the Municipality of Faro, the amount is 665,000

Project description
The project presented proposes changing the interiors of the rooms, reconfiguring their
space so that we can have more accommodation units, however, this change does not change anything
the maximum value foreseen in the PDM - 160 beds distributed among the 83 accommodation units. These 83 AU,
they consist of 77 T1 doubles, and 6 T1 singles, 2 of which are adapted for users with mobility
conditioned.
Floor -3 remains the same, and will feature common areas with parking spaces, 5
reserved for disabled mobility users (UMC), reception of conference rooms, meeting rooms
conference, gender-separated sanitary facilities in support of conference rooms and service areas
which contains technical areas, bicycle storage, garbage deposit, laundry room, storage and kitchen to support the
conference rooms.
On floor -2, the common areas remain unchanged, and we will have the entrance hall, reception,
bar, gourmet restaurant, main restaurant with open kitchen, Asian restaurant with kitchen
open and bar, sanitary facilities divided by gender, one of which is adapted for
disabled guests, living room, library, internet, café, shop, venue, ticket office,
bar, another block of sanitary facilities, one of which is adapted for mobility users
conditioning, dance floor with bar. The accommodation units underwent a change of 7UA (5 T1 double
and 2 T2 Doubles), for 9UA (9 T1 Doubles). As service areas, we have a kitchen to support the restaurants.
(pantries, pantries, storerooms, preparation areas), floor pantry, security, garbage deposit,
staff canteen, sanitary facilities/ showers/ changing rooms for male and female staff, areas
Anabela Polido Macieira / KEY Zen Arquitetura, Lda / + (phone hidden) / + (phone hidden) / (email hidden)
technical areas, archives, collections, layoffs, technical areas, support for the venue and nightclub
(sanitary facilities, staff room, kitchen, rehearsal room, backstage, wine cellar).
On the -1 floor, as common areas, there are 2 shops, a hairdresser, a SPA with a reception, facilities
toilets for both sexes, caldarium, relaxation room, therapy room, steam rooms,
hammam, semi-covered swimming pool, jacuzzi, dead sea, bar, hydromassages, saunas, I. S. UMC, rooms
Asian massages, indoor children's pool, indoor golf room, games room, gymnasiums with
massage and sanitary facilities/bathrooms (M/F/UMC), children's area, upper floor of the
show, sanitary installations to support the outdoor swimming pool, buggies storage area, I. S.
Changing rooms/changing rooms M/F/UMC. In the service areas we have sanitary facilities to support the service (M
F), lay-offs, towel service, kitchen to support the semi-covered pool bar, ticket waiver,
archive, laundry area, 1st aid area, storage, technical areas, golf store storage,
collection of tools and floor pantry. The accommodation units underwent a change of 15 AU
(13 double T1 and 2 double T2), for 18 AU (1 single T1 and 17 double T1).
On the 0th floor, as common areas, we will have the entrance hall, reception, sanitary installation (M/F/UMC), and the
accommodation units that increased from 27 AU (20 T1 doubles, of which 3 are adapted to UMC, 6 T2
double + single and 1 T32 double + single) for 33 AU (4 T1 singles, of which 2 are adapted to UMC, and 29
double T1).
The 1st floor is intended, as common areas, for a restaurant-terrace, bar, service areas
it contains the kitchen, pantries, storage, pantry and furniture storage. The units of
accommodation went from 18 AU (13 double T1 of which 3 are adapted to UMC, 2 double T2,2 double T2 +
single and 1 T32 double + single), for 23 AU (1 T1 single and 22 T1 double).
All architectural changes presented comply with the decree of law 163/2006, of 8 August.

Hotel rating and capacity
With regard to the capacity of the hotel, it was intended not to exceed that regulated in Article 22 - E,
provisions of the Regulation of the Municipal Master Plan of Faro, with the current wording, as well as the
previous proposal, with a maximum capacity of 160 beds (respected and maintained, as in the project
above), and 152 convertibles, distributed over 8

Photos

  • -818673464_IDf2434001-0000-0500-0000-000010a99a1b.jpg
  • -818673464_IDf2434001-0000-0500-0000-00001120b356.jpg
  • -818673464_IDf2434001-0000-0500-0000-00001120b358.jpg
  • -818673464_IDf2434001-0000-0500-0000-00001120b357.jpg
  • -818673464_IDf2434001-0000-0500-0000-00001120b359.jpg
  • -818673464_IDf2434001-0000-0500-0000-00001120b35a.jpg
  • -818673464_IDf2434001-0000-0500-0000-00001120b35b.jpg
  • -818673464_IDf2434001-0000-0500-0000-00001120b5ea.jpg
  • -818673464_IDf2434001-0000-0500-0000-00001120b5eb.jpg
  • -818673464_IDf2434001-0000-0500-0000-00001120b5ec.jpg
  • -818673464_IDf2434001-0000-0500-0000-00001120b5ed.jpg
  • -818673464_IDf2434001-0000-0500-0000-00001120b5ee.jpg
  • -818673464_IDf2434001-0000-0500-0000-00001120b35c.jpg
  • -818673464_IDf2434001-0000-0500-0000-00001120b35d.jpg
  • -818673464_IDf2434001-0000-0500-0000-00001120b35e.jpg
  • -818673464_IDf2434001-0000-0500-0000-00001120b35f.jpg
  • -818673464_IDf2434001-0000-0500-0000-00001120b360.jpg
  • -818673464_IDf2434001-0000-0500-0000-00001120b361.jpg
  • -818673464_IDf2434001-0000-0500-0000-00001120b362.jpg
  • -818673464_IDf2434001-0000-0500-0000-00001120b41b.jpg
  • -818673464_IDf2434001-0000-0500-0000-00001120b5ef.jpg

Location

Gorjões, Santa Bárbara de Nexe, Faro, Faro (Algarve)