+351 281 101 254 | +351 918 774 036

Bungavília Plaza nº1
Quinta do Lago
8135-024
Procurar Imóvel
Partilhar  »  
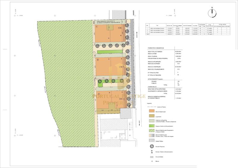
Terreno com projeto para construção de 3 blocos de apartamentos
1 / 20
2 / 20
3 / 20
4 / 20
5 / 20
6 / 20
7 / 20
8 / 20
9 / 20
10 / 20
11 / 20
12 / 20
13 / 20
14 / 20
15 / 20
16 / 20
17 / 20
18 / 20
19 / 20
20 / 20
Ver fotografias de maior dimensão
  • Tipo de imóvelTerreno
  • Venda
    € 3.000.000
    ≈ ₿ 48,484
  • Área16000 m²
  • DistritoFaro
  • ConcelhoOlhão
  • Freguesia
    Olhão
  • REFPR-CS-TU-87427
-
-
-
16000 m²
-1
-
...
 

Descrição

'Oportunidade Única: Terreno Estratégico para Desenvolvimento Residencial e Comercial!

Localizado em uma das principais vias de acesso da cidade, com transporte público regular, este terreno de 16.000m² é ideal para a construção de um empreendimento de destaque. O projeto prevê a construção de 3 blocos, totalizando 72 apartamentos, 18 lojas e 128 lugares de estacionamento.

Todas as infraestruturas necessárias, incluindo água, luz, esgotos e gás de rede, estão disponíveis no local. Além disso, a estrada está atualmente passando por reabilitação, com melhorias planejadas que incluem novos estacionamentos e espaços verdes.

Nos planos está também a criação do Parque da Cidade, um parque urbano com 44 hectares, localizado na parte traseira do empreendimento. Esta é uma oportunidade única para investir em um projeto que não apenas oferece um excelente potencial de retorno financeiro, mas também contribui para o desenvolvimento sustentável e a qualidade de vida da comunidade.

Não perca a chance de fazer parte deste empreendimento inovador. Entre em contato conosco hoje mesmo para mais informações e para explorar esta oportunidade emocionante! '

Fotografias

  • -820841416_IDd4615d01-0000-0500-0000-000011294e3c.jpg
  • -820841416_IDd4615d01-0000-0500-0000-000011294e3b.jpg
  • -820841416_IDd4615d01-0000-0500-0000-000011294e3d.jpg
  • -820841416_IDd4615d01-0000-0500-0000-000011294e3e.jpg
  • -820841416_IDd4615d01-0000-0500-0000-000011294e3f.jpg
  • -820841416_IDd4615d01-0000-0500-0000-000011294e40.jpg
  • -820841416_IDd4615d01-0000-0500-0000-000011294e41.jpg
  • -820841416_IDd4615d01-0000-0500-0000-000011294c1a.jpg
  • -820841416_IDd4615d01-0000-0500-0000-000011294c1b.jpg
  • -820841416_IDd4615d01-0000-0500-0000-000011294c1c.jpg
  • -820841416_IDd4615d01-0000-0500-0000-000011294c1d.jpg
  • -820841416_IDd4615d01-0000-0500-0000-000011294c1e.jpg
  • -820841416_IDd4615d01-0000-0500-0000-000011294c1f.jpg
  • -820841416_IDd4615d01-0000-0500-0000-0000112951e2.jpg
  • -820841416_IDd4615d01-0000-0500-0000-0000112951e3.jpg
  • -820841416_IDd4615d01-0000-0500-0000-0000112951e5.jpg
  • -820841416_IDd4615d01-0000-0500-0000-0000112951e7.jpg
  • -820841416_IDd4615d01-0000-0500-0000-0000112951e8.jpg
  • -820841416_IDd4615d01-0000-0500-0000-0000112951e9.jpg
  • -820841416_IDd4615d01-0000-0500-0000-0000112951ea.jpg

Localização

Olhão, Faro (Algarve)